Ogłoszenie zostało dodane do schowka

DODAJ DO SCHOWKA 2025-04-21 18:15:22 Syndyk (osoba prywatna)

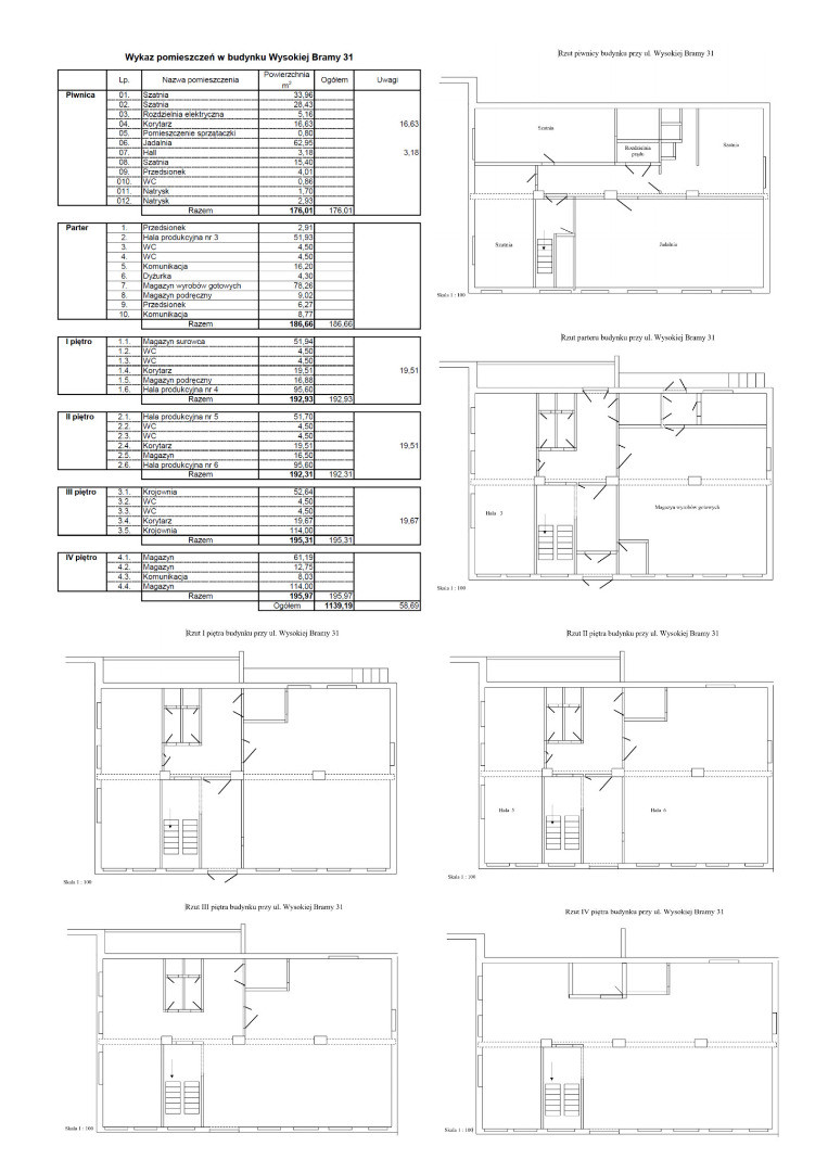
SYNDYK sprzeda budynek przemysłowo-biurowy w Lidzbarku Warmińskim

identyfikator ogłoszenia A62513

Cena: 1 868 377,50
Lokalizacja: 11-100, Lidzbark Warmiński
Jesteś kategorii:

Informacje o ofercie Liczba odsłon: 129

Poziom
Parter
Powierzchnia
177 m2
Przeznaczenie lokalu
Usługowe

SYNDYK MASY UPADŁOŚCI WARMIŃSKA Sp. z o.o. sprzeda nieruchomość gruntową stanowiącą działkę nr 37/2 o pow. 0,1360 HA zabudowaną budynkiem przemysłowo-biurowym położoną w Lidzbarku Warmińskim przy ul. Wysokiej Bramy 31 dla której Sąd Rejonowy w Lidzbarku Warmińskim prowadzi księgę wieczystą KW nr OL1L/00015810/9 wraz z niezabudowaną działką nr 34/2 o pow. 0,0177 HA stanowiącą plac parkingowy przed budynkiem nr KW OL1L/00015809/9 - za cenę nie niższą niż 3/4 ich wartości oszacowania: 1.868.377,50 zł (wartość oszacowania: 2.491.170,00 zł). Sprzedaż prowadzona jest w formie konkursu ofert. Oferty pisemne, z podaniem proponowanej ceny należy składać w Kancelarii Notarialnej Zbigniewa Stankiewicza w Olsztynie przy ul. Dąbrowszczaków 18/4, tel. (89)527 32 30 - w terminie do dnia 8 sierpnia 2025r. Rozstrzygnięcie konkursu ofert nastąpi 13 sierpnia 2025r. o godz. 10.00. O wyniku oferenci zostaną powiadomieni listownie. Przystąpienie do konkursu oznacza zapoznanie się z regulaminem konkursu ofert i jego akceptacją. Syndyk zastrzega prawo swobodnego wyboru oferty a także unieważnienia konkursu bez podania przyczyn. Nieruchomość można oglądać po uprzednim uzgodnieniu terminu z p. Bożeną Mazurek tel. 600 472 178. Szczegółowe informacje oraz regulamin konkursu ofert jest dostępny w Internecie na stronie www.syndykolsztyn.com oraz www.syndykolsztyn.eu. Tel. do syndyka 502 957 530.

Dołącz do newslettera! Ostatnio przeglądane Blog